This was a project for which I did the construction documents and the construction administration; it included the expansion of the church to include 200 more people, with the addition of an attached library and office space and the addition of two new, detached kindergarten wings for the school.
Photoshop renderings from my CAD drawings.
A private residence on Sunset Key, Florida, with 8 inch cmu walls, a widow’s walk, and an infinity pool.
Floor plans and elevation for a proposed residence.
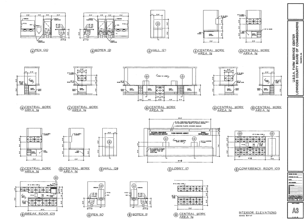
A project for which I completed the construction documents and the construction administration for a new USDA Farm Services Center.
CAD drawings for a new baggage compartment installation, in a private jet. Drawings were submitted to FAA for approval.
CAD drawings for a new galley installation, in a private jet. Drawings were submitted to FAA for approval.
CAD drawings for a new, small airport terminal.
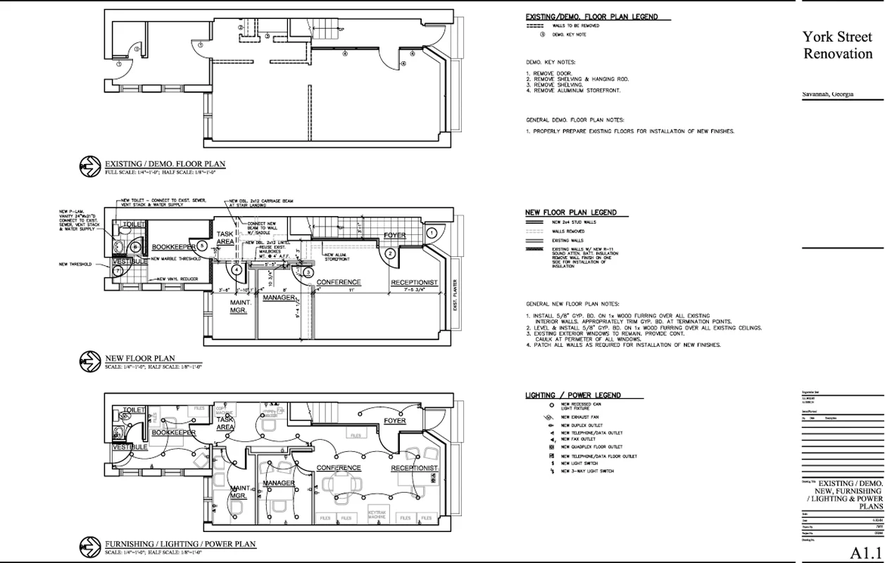
This was a project for the city of Savannah, Georgia, for which I did the construction documents and the construction administration.
A small storefront build-out in downtown Savannah, GA.